- Accueil
- Vente
- Vendee
- Olonne sur mer
- Programme neuf
Référence : 1064
Calculette
Partager
Programme neuf
Description de l'offre
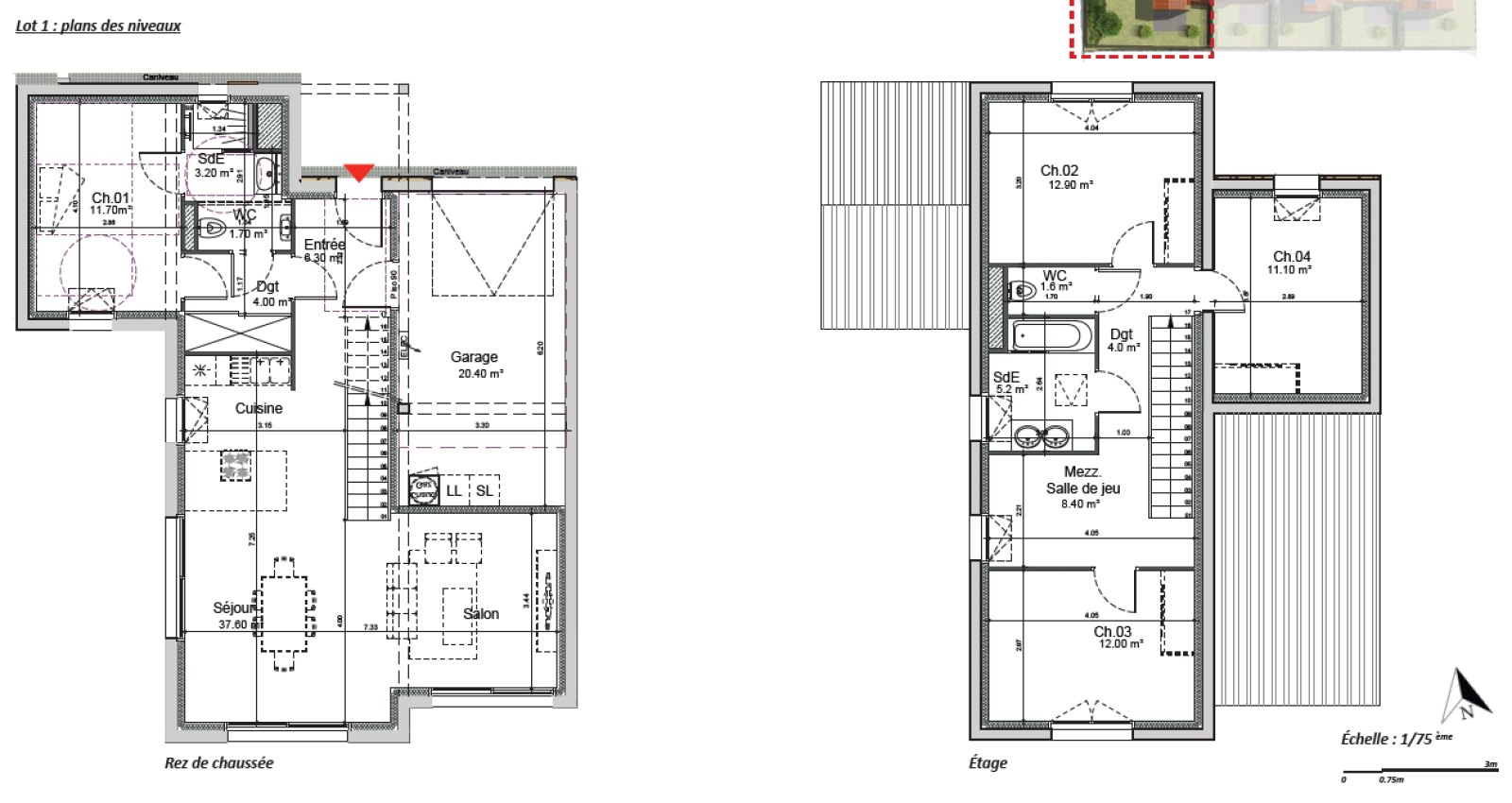
A proximité immédiate de toutes les commodités ( commerces, bus, écoles). superbe maison CONTEMPORAINE de type 5, aux normes RT 2012 comprenant : entrée, belle pièce à vivre avec cuisine ouverte, 1 suite parentale avec salle d'eau, 2 wc, 3 chambres, espace mezzanine,salle d'eau, garage, jardin clos et arboré. Prestations haut de gamme. 519 900 € HAI dont 4 % d'honoraires à la charge de l'acquéreur ( 499 500 € hors agence). FRAIS DE NOTAIRE REDUITS. Les informations sur les risques auxquels ce bien est exposé sont disponibles sur le site Géorisques: www.georisques.gouv.fr.
Descriptif du bien
- Code postal : 85340
- Surface habitable (m²) : 119,70 m²
- surface terrain : 400 m²
- Surface loi Carrez (m²) : 119,70 m²
- Nombre de chambre(s) : 4
- Nombre de pièces : 5
- Nombre de niveaux : 1
- Nb de salle d'eau : 2
- Cuisine : AMERICAINE
- Type de cuisine : EQUIPEE
- Terrasse : OUI
- Nombre de garage : 1
- Année de construction : 2024
- Copropriété : NON
- Prix de vente honoraires TTC inclus : 519 900 €
- Prix de vente honoraires TTC exclus : 500 000 €
- Honoraires TTC à la charge acquéreur : 3,98 %
La ville de Olonne sur Mer (85340)
Nous Contacter
Afficher le téléphone 02 51 20 32 72Les informations recueillies sur ce formulaire sont enregistrées dans un fichier informatisé par La Boite Immo agissant comme Sous-traitant du traitement pour la gestion de la clientèle/prospects de l'Agence / du Réseau qui reste Responsable du Traitement de vos Données personnelles.
La base légale du traitement repose sur l'intérêt légitime de l'Agence / du Réseau.
Elles sont conservées jusqu'à demande de suppression et sont destinées à l'Agence / au Réseau.
Conformément à la loi « informatique et libertés », vous disposez des droits d’accès, de rectification, d’effacement, d’opposition, de limitation et de portabilité de vos données. Vous pouvez retirer votre consentement à tout moment en contactant directement l’Agence / Le Réseau.
Consultez le site https://cnil.fr/fr pour plus d’informations sur vos droits.
Si vous estimez, après avoir contacté l'Agence / le Réseau, que vos droits « Informatique et Libertés » ne sont pas respectés, vous pouvez adresser une réclamation à la CNIL.
Nous vous informons de l’existence de la liste d'opposition au démarchage téléphonique « Bloctel », sur laquelle vous pouvez vous inscrire ici : https://www.bloctel.gouv.fr
Dans le cadre de la protection des Données personnelles, nous vous invitons à ne pas inscrire de Données sensibles dans le champ de saisie libre.
Ce site est protégé par reCAPTCHA, les Politiques de Confidentialité et les Conditions d'Utilisation de Google s'appliquent.
